Grindinio ir sieninio šildymo instaliavimas individualiame name
Pereiti į navigaciją
Jump to search
| Produktas | InstalSystem 5 |
| Straipsnio tipas | PAVYZDINIAI PROJEKTAI |
| Turinys aktualus versijai | IS 5.0 Beta 21 |
Projekto aprašymas
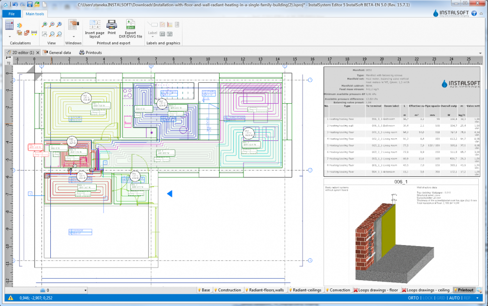
Šis pavyzdys pateikia paviršinio šildymo sistemą, įskaitant grindų ir sienos šildymą, dviejų aukštų pastate be rūsio.
| Projekto bylos
|
Grindinio ir sieninio šildymo instaliavimas individualiame name, isproj |
| Parengta | InstalSystem 5 Rev. BETA 16.1. |
| Būtini moduliai | Bazinis modulis Šildymo sistemos Kilpinės plokštuminės sistemos |
| Projekto apimtis | Paviršinis šildymas |
| Panaudoti katalogai |
Basic radiant systems |
| Pastato tipas | Individualus namas niepodpiwniczony 2-kondygnacyjny |
| Statinio konstrukcija | 1a_planas, dwg 2a_planas, dwg |
| Brežinių apimtis | Projektai |
| Sukūrė | www.instalsoft.com |
| Teisiniai apribojimai | Galima kopijuoti visą projektą arba dalimis |
| Skaičiavimų rezultatai | Skaičiavimo rezultatai visa apimtimi, xls Galimas spausdinimas visa apimtimi, pdf Skaičiavimo rezultatai paviršiniam šildymui, pdf Medžiagų žiniaraštis, pdf Montavimo parametrai, pdf |
| Gauti brėžiniai | 1 aukštas, dwg 2 aukštas, dwg 1 aukštas, pdf 2 aukštas, pdf |

